Руководитель Хабаровской канцелярии Генерального консульства КНДР во Владивостоке Ким Чжэ Чжон обратился в правительство края по вопросу согласования установки памятного камня, посвященного визиту генерального секретаря Трудовой партии Кореи Ким Чен Ира в Хабаровске 17 августа 2001 года.
По результатам переговоров с корейской стороной планируется установить памятный камень возле Амурского утеса вблизи места, где ранее была установлена памятная плита, посвященная визиту Ким Чен Ира в Хабаровске, с одновременным проведением ее демонтажа. Рассматривается вариант закрепления данной плиты на памятном камне.
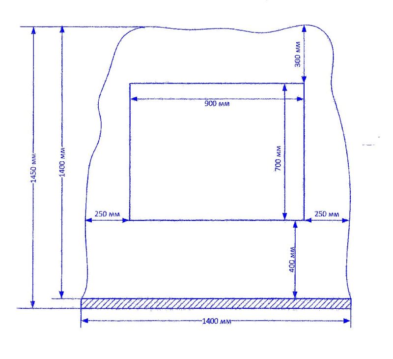
Корейской стороной представлен эскиз памятного камня с размерами, а также содержание надписи на нем. Сам памятный камень будет высотой в полтора метра.
 |
| У Хабаровского утеса появится новый камень с табличкой - здесь был Ким Чен Ир |
|
|
 |
| У Хабаровского утеса появится новый камень с табличкой - здесь был Ким Чен Ир |
|
|
 |
| У Хабаровского утеса появится новый камень с табличкой - здесь был Ким Чен Ир |
|
|
 |
| У Хабаровского утеса появится новый камень с табличкой - здесь был Ким Чен Ир |
|
|